透過低飽和度灰色的採用,佐以鮮明色彩,形塑居家的沉著舒適感,在成就低調氣韻的同時,創造豐富的設計感,使得屋中不乏令人眼睛為之一亮之處;除此之外,詠絮設計 在異材質的使用上,亦有所劃設追求,綜合用料細節以及房屋基調的設定,灰調氤氳的室內,石材以及各式軟裝共織而成氣派的實品屋景緻。
順應樓層 頂層沐光
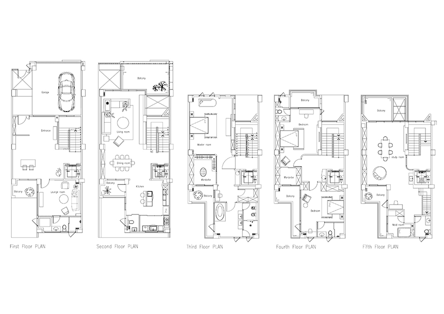
因應各樓層空間格局,搭配日常起居用途,五層樓分別劃設為小起居室、客餐廳、主臥及更衣間、孩童房、書房,各自擁有接待客人、兼顧隱私性、獨立衛浴等效用;其中尤其別具特色的區位,為因應斜屋頂結構的書房,其具備天光自然灑落優勢,做為藏書閱讀規劃,使人備覺愜意自適。
場域開放 區間流通
方正大氣的室內構造,不僅降低閒置空間,也使得坪效利用最佳化,因此設計時便順勢而為,在區與區之間不做明顯隔斷,除使得連結方式顯得透明直接,也創造出連通、連接處不設限的自由場所。
異材相構 視感豐實
選擇單一灰調作為視覺主軸前提下,經由材質組構的變化、異材質的組合,不同的區位間皆被賦予了自己的視覺特質;孩童房的趣味性,公共領域的安穩,都以同一基礎做發揮,在細節以及色彩的調度上做出變化。
Source │ OPEN DESIGN
